Инструкции
pdf RUS 28 стр
Инструкции Harvia
Электрические печи
Harvia Cilindro, Cilindro H и Cilindro F
Harvia Vega Compact
Harvia Cilindro 110EE и Cilindro 110HEE
Harvia Unio
Harvia Delta EE
Harvia Delta Combi
Harvia Delta
Harvia Alfa
Harvia Cilindro EE и Cilindro HEE
Harvia Classic Electro
Harvia Classic Quatro
Harvia Eco, Termonator
Harvia Feelings
Harvia Figaro
Harvia Forte
Harvia Forte NEW
Harvia Fuga
Harvia Globe
Harvia KIP
Harvia Kivi
Harvia Moderna
Harvia Sound
Harvia Symphony
Harvia Termonator
Harvia Topclass
Harvia Topclass Combi
Harvia The Wall
Harvia Vega
Harvia Vega Combi
Harvia Vega Lux
Harvia Virta
Harvia Virta Combi
Harvia Club
Harvia Club Combi
Harvia Elegance
Harvia Legend
Harvia Modulo MD
Harvia Modulo MDA
Harvia Modulo Combi
Harvia Profi
Harvia Senator
Harvia Senator Combi
Harvia Vega Pro
Harvia Virta Pro
Harvia Virta Pro Combi
Дровянные печи
Harvia Classic 140
Harvia Legend 150
Harvia Legend 150 SL
Harvia M1
Harvia M3
Harvia M3 SL
Harvia 20 Boiler
Harvia 20 Duo
Harvia 20 ES Pro и Pro S
Harvia 20 Pro
Harvia 20 SL
Harvia 20 SL Boiler
Harvia Classic 220
Harvia Classic 220 Duo
Harvia Legend 240
Harvia Legend 240 Duo
Harvia Legend 240 SL
Harvia Premium
Harvia Premium VS
Harvia 20 LS Pro и Harvia 20 RS Pro
Harvia 26 Pro
Harvia 36
Harvia 36 Duo
Harvia 50
Harvia 50 SL
Harvia Classic 280
Harvia Classic 280 Top
Harvia Classic 400 Top Duo
Harvia Legend 300
Harvia Legend 300 Duo
Парогенераторы
Harvia HGP
Harvia HGX
Harvia Steam
Освещение
Harvia Legend sauna light
Комплект для освещения сауны Harvia Legend
Harvia cветильник и абажуры для сауны
Стальной светильник Harvia SAS21106, SAS21107 для сауны
Стальной светильник Harvia SAS21106, SAS21107 для сауны
Цветная подсветка Harvia
Шайка с подсветкой Harvia SAC10101
Пульты управления
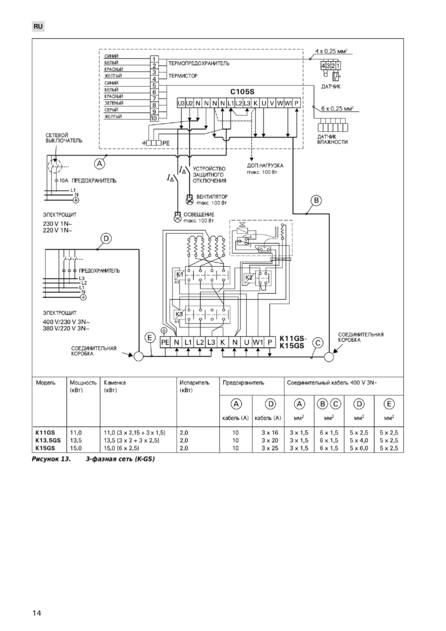
Harvia C105S Logix
Harvia C150
Harvia C260
Harvia C70
Harvia C90
Harvia Fenix
Harvia Griffin CG170
Harvia Griffin Colour Light G170T
Harvia Griffin Combi CG170C
Harvia Griffin Infra CG170I
Harvia XENIO
Harvia XENIO INFRA
Harvia XENIO CX110
Harvia XENIO COMBI
Двери
Дверь с алюминиевой коробкой Harvia
Комплект алюминиевых наличников Harvia
Стеклянные дверь Harvia
Двери и окна Harvia
Дымоходы
Дымовые трубы Harvia
Стальной дымоход Harvia
Инфракрасные сауны
Harvia Elegant Infra
Harvia Griffin Infra CG170I
Harvia Radiant
Инфракрасный излучатель Harvia Basic, Comfort
Сауны
Harvia Capella
Harvia Sirius
Harvia outdoor sauna
Harvia Rondium
Harvia Variant
Камины
Каминная вставка Harvia 400
Каминная вставка Harvia 550 Panorama
Каминная вставка Harvia 650 Panorama
Плита-камин Harvia 10
Harvia Corona и Corona Steel
Harvia Festia
Harvia Harmonia
Harvia Nostalgia Mini
Harvia Sonata
Harvia Termia
Водонагреватели
Водонагреватели Harvia для установки на трубу
Водонагреватели Harvia для установки сбоку
Печь-бак Harvia 50 л
Печь-бак Harvia 80 л
Электрический водонагреватель Harvia VL-2
Доп. Оборудование
Harvia Sauna Steamer
Защитная обшивка Harvia
Защитное ограждение дымовой трубы Harvia Legend
Защитное ограждение и основание Harvia
Защитные ограждение и основание Harvia Legend
Harvia Sauna Care Set
Термо-Гигрометр Harvia
Коптильня Harvia
Аксессуары
Harvia Autodose
Декоративная каменная стена Harvia



























