Инструкции
pdf RUS
Инструкции SAWO
Электрические печи
SAWO Phoenix Ni2
SAWO Mini
SAWO Mini Combi
SAWO Mini X
SAWO Nordex
SAWO Nordex Combi
SAWO Nordex Ni2
SAWO Nordex Mini Ni2
SAWO Nordex Plus Ni2
SAWO Scandia
SAWO Scandia Combi
SAWO Scandia Dragonfire
SAWO Savonia
SAWO Savonia Combi
SAWO Tower
SAWO Tower TH ML
SAWO Tower CNR
SAWO Tower WL
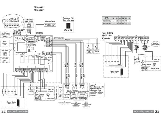
SAWO Tower Ni2
SAWO Tower CNR Ni2
SAWO Tower WL Ni2
SAWO Aries
SAWO Aries Ni2
SAWO Aries CNR Ni2
SAWO Aries WL Ni2
SAWO Dragonfire Fiberjungle
SAWO Cirrus
SAWO Cirrus 2, 3
SAWO Cirrus Rock 2, 3
SAWO Cumulus
SAWO Cumulus Ni2
SAWO Altostratus
SAWO Taurus
SAWO Nimbus
SAWO Nimbus Combi
SAWO Orion
SAWO Heaterking Round
SAWO Heaterking Round Ni
SAWO Heaterking Corner
SAWO Heaterking Wall
SAWO Heaterking Wall Ni
SAWO Scandifire
SAWO Minidragon
SAWO Cubos
SAWO Cubos Ni2
SAWO Helius
SAWO Mini Steam Mate
SAWO Scandia Steam Mate
Парогенераторы
SAWO STP
SAWO STN
SAWO STE
SAWO STE-V2
SAWO STP-Pump
Пульты управления
SAWO Classic
SAWO Classic 2.0
SAWO Sensor Control
SAWO STE-V2
SAWO Innova Touch
SAWO Innova Classic 2.0
SAWO Innova Classic
SAWO Saunova 2.0
Регулятор SAWO Saunova 2.0
Регулятор SAWO Innova
Двери
SAWO ST 746
Сауны
Скамейки SAWO 520, 521, 522, 523, 524
Аксессуары
Обливное ведро SAWO






































