


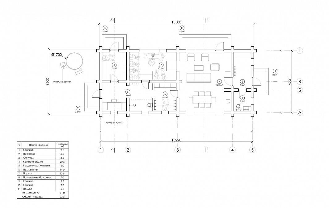
Просторная одноэтажная баня традиционной прямоугольной формы.
Баня имеет несколько отличительных особенностей. Это и каменный пояс, отделанный кирпичом, и второй свет, зрительно увеличивающий пространство бани. Планировочное решение бани включает в себя прихожую, санузел, комнату отдыха, раздевалку, помывочную, парную и отдельное помещение банщика.









