Инструкции
pdf RUS 36 стр
Инструкции Helo
Электрические печи
Helo Roxx с пультом Elite
Helo Rocher с пультом Elite
Helo Roxx с пультом Pure
Helo Rocher с пультом Pure
Helo Piccolo с пультом Pure
Helo Himalaya с пультом Pure
Helo Himalaya с пультом Elite
Helo Hanko
Установка ограждения для Helo Himalaya
Helo Laava и SKLE с релейным блоком WE 40
Helo Laava и SKLE
Helo Octa с релейным блоком WE 40
Helo Octa
Helo Fonda с выносным управлением
Helo Fonda с встроенным управлением
Helo Rondo
Helo Vienna
Helo Saunatonttu
Helo с технологией BWT
Helo Cup
Helo Havanna
Helo Ring Wall
Helo Ringo и Robust Black
Helo Saga Electro
Helo Laava и Magma с BWT технологией
Helo SKLA и Magma
Helo Pikkutonttu
Дровянные печи
Helo SL
Helo SIL
Парогенераторы
Helo Steam Pro
Helo Steam
Helo HNS T1
Пульты управления
Helo Premium WIFI
Helo Pure
Helo Elite
Helo Elite Free
Tylo EC50
Helo T1
Helo T2
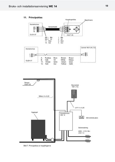
Helo WE 14
Helo WE40
Helo WE50, 51, 52
















































































































