

Строгость геометрических форм в архитектурном образе объекта указывают на hi-tech стиль, который в последнее время все чаще и чаще встречается в наших проектах.
Панорамные окна от пола до потолка стирают границы между объектом и природным ландшафтом, образуя комфортное и уютное пространство для отдыха.

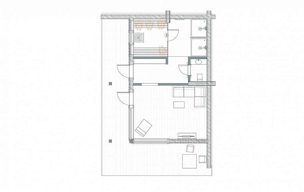
При этом мы сохранили в планировки наши традиционные артельские решения: есть просторная комната отдыха (почти 21 м2), где можно разместить мини-кухню и мягкую группу, помывочная, санузел и парная. Из комнаты отдыха или помывочной можно выйти на просторную обходную террасу, скрытую от чужих глаз бревенчатой части бани.

Если вы не можете определиться между бревном и клееным брусом, то этот проект – для вас!








